M A R Í A . L O R E T O . V A L E N Z U E L A pix
pix
REHABILITACIÓN CASA EN   Volver
arq
  pix
Nombre Proyecto “Casa EN”
Encargo Sergio Delgado
Año Proyecto 2009
Autor María Loreto Valenzuela
Evaluación constructiva Constructor Civil Daniel Valenzuela
Emplazamiento Los Romeros, Concón
Superficie proyectada 202 m2
Descripción El cliente solicita generar un proyecto de rehabilitación de bajo costo, diferente de lo común y que genere valor, para comprar la propiedad, remodelar y vender.

De la casa original de un piso se valoriza la chimenea de piedra, zócalo de piedra, revestimiento de muros en alerce, subterráneo, posibilidad de vista al mar desde altura, y orientación norte.

Se plantea generar la especialidad especial de la casa para valorizarla en torno a dos situaciones en que uno queda en algo que tiene clima exterior pero función interior:

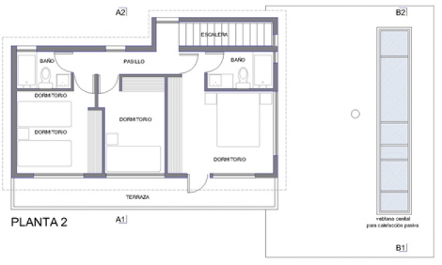
La chimenea como escultura para el vestíbulo de acceso, que se recorrerá perimetralmente ascendiendo por una rampa de acero, en un jardín interior “zen” rodeado de ventanas. Este mismo espacio permitirá calefaccionar pasivamente la casa.

La terraza del piso 1 como para un estar mínimo pero suficiente, construido con vigas recuperadas dispuestas verticalmente como los derrames de las iglesias góticas que son un espesor habitable.

El vestíbulo del acceso es también calefacción pasiva de ganancia aislada, que funciona porque es una caja de vidrio que permite que la piedra del muro, piedras del jardín “zen” y rampa de acero se calienten y almacene calor que se libera de manera lenta y prolongada durante el día y la noche. El vestíbulo esta adosado pero aislado de la casa, conectado por puertas y ventanas interiores estratégicas que se abren a necesidad de intercambio de calor. En verano para evitar el sobrecalentamiento se cubren las ventanas cenitales y ponientes con persianas de aluminio reflectante exteriores, y se abren ventanas exteriores para generar corrientes frescas.

El resto de la casa queda bien aislado porque se construye una segunda piel por fuera de los muros existentes para esconder la nueva estructura de acero que sostendrá el segundo piso. De tal modo que se aprovecha este espesor entre revestimientos nuevos y viejos para rellenar con celulosa proyectada como aislante térmico y acústico, y pasar todos los nuevos ductos sanitarios y eléctricos.
El proyecto se resuelve a un costo razonable, con métodos constructivos simples y con un lenguaje formal diferente al de las casa vecinas pero con elementos reconocibles de la arquitectura costera de Valparaíso y Concón.
Galeria de Imágenes: